The Cross and the Shamrock: the art and history of St. Patrick Cemetery

This is the field and acre of our God. – H. W. Longfellow
The Irish were not meant to be a permanent work force in early Lowell. The area, which would become the manufacturing Mecca of America, had recently been purchased from the farmers and landowners of Chelmsford by the Boston Associates as part of their dream of creating a mill city on the Merrimack. Their dream was large and necessitated a work force to dig canals to bring power to the mills and to build the workhouses of red brick. Kirk Boott, the man who was chosen to build such a place, met with one Hugh Cummiskey, a native of County Tyrone, Ireland, in a tavern in what would be the new city in the year 1822 to strike a deal. It was agreed that Cummiskey would bring a crew of laborers up from Charlestown to the city-in-waiting to provide the labor necessary.
So begins the traditional account of the beginning of Lowell’s Irish community. There was prior to this a small body of Irish who worked in the area on local farms or the glass works in Chelmsford. Therefore it is with Hugh and his sturdy workers that the story begins. Those first laborers made their dwellings in an area that came to be called the Paddy Camps and later the Acre. Their numbers began to rise and soon there was a permanent population here. Not a very welcome thought to some of Lowell’s Yankees.
Surely there were deaths within the Irish population during these early years, but no records exist of any certain Irish burials in Lowell. One reason for this would be that since many Irish were Catholic, they would want to be buried in grounds that had been consecrated by the Church. With the appointing of Father Mahoney as a permanent pastor to the growing flock and St Patrick Church being opened in July of 1831, the Irish had become a permanent part of the city’s landscape. The conditions under which the Irish worked and lived would be substandard in today’s vision. The few early accounts of life in the Acre tell of poor housing, crowded and unsanitary conditions. One early writer recalled pigs running through the streets. Some who died during this time were often brought to Saint Augustine’s Cemetery in South Boston or Bunker Hill Cemetery to be interred there. One of Lowell’s pioneer Irishmen, Denis Crowley, often accompanied the body on the trip. Mr. Crowley would later be buried in Saint Patrick’s. It is possible that some were buried in the cemeteries kept by the town.
The Town of Lowell kept two cemeteries in the area, one being along Boston Road (Gorham Street) known as Number Two. The Irish may have started putting their dead in a tract of land that runs along the side of Number 2, now called Old English Cemetery. There is one stone in Saint Patrick’s which gives the date of 1829, three years prior to the Cemetery’s formal establishment. It seems certain that the stone was placed there much after the burial and whether the burial was at that place is questionable.
In the notes of Bishop Fenwick for April 10, 1832, the following appears:
“A day similar to yesterday. Rev’d Mr. Mahoney arrives from Lowell & states that a burying ground has been purchased close to town on the road to Bilricky & that it is in every respect a desirable spot for the internment of the dead. He states farther that Kirk Boott Esq’r has given another Lot fronting the Cath church for their better accommodation.”
The acquisition of the acre and a half plot of land must have been a relief to the Bishop. For quite some time the people of Boston had been remarking on the number of burials taking place at Saint Augustine and a similar burying ground at Bunker Hill. Boston’s city fathers had been hinting that such burials might be stopped and at some periods there were bodies that had to wait to be interred while the dispute was going on. Father Mahoney’s purchase took a weight off the Boston and Lowell communities. Lowell’s Irish now had a place of their own for burials, no more long trips into Boston, and Boston did not have to worry about their grounds filling up as quickly. By erecting a church, and now purchasing land for a cemetery, it made a statement that the Irish were here to stay in Yankee Lowell. It was simply called the Catholic Burial Ground and did not use the name Saint Patrick’s Cemetery until other Catholic grounds were incorporated later in the century. It was also sometimes referred to as the New Catholic Cemetery. Unlike today’s avenues and laid out plots, the original burial grounds had no form or design. A cemetery worker wrote the following in 1933:
“In the early days there was no charge of any kind connected with burial in the Cemetery. When death came to any member of Lowell’s little catholic community the relatives of the decease might secure a burial place for the asking. Friends of the family dug the grave and bore the body to its last resting-place. The Cemetery then was nothing more than a field set apart and dedicated to burial purposes”.
This is highly contrasted to other burial grounds such as the Lowell Cemetery, founded nine years later in 1841, which followed a growing trend of cemeteries not only being used for burials, but also as a place for walking and enjoying nature’s beauty. Saint Patrick’s was very much a working person’s cemetery.
The Cemetery expanded rapidly. Within the first decade another acre and a half was added. Father John O’Brien is mentioned in Bishop Fenwick’s diary of 1866 for adding onto the cemetery again. It was at this time that the new areas were being laid out in a “checker board” style. This was a rather utilitarian style and greatly detracted from the natural setting. Roadways were straight and very often lost possible burial space because of the layout. Plantings were rarely taken into account. The styles, designs, and materials used for the monuments changed with the times and the economics of the population. Marble replaced the dark slates and later granite markers replaced the marble except for the carved angels and elaborate crosses and other designs that could only be carved in marble. Unfortunately for us today the white marble is affected by air pollution and is often hardly visible to the reader. In contrast a slate stone, which can predate the marble stone by two or three decades, is still legible.
Though the Cemetery was taking on a more formal appearance, accurate records were not kept. Very few records remain from these early years of the Cemetery. Detailed record keeping did not begin until 1895, a fact that greatly disturbs many who are doing genealogical research in the Cemetery. The records that do exist prior to 1895 are in no defined order, difficult to read, and do not contain much information as to who is buried where. Very often only the original lot owner is listed. The burial records often contain scant information and some times do not even list the place of burial. Possibly no formal records were kept. Some records were kept by individual funeral directors. Perhaps some of these were never passed into the Cemetery. A fire at Saint Patrick Church in 1904 was also another possible cause for the record’s disappearance.
The Cemetery grew along with the city. After the Civil War, French-Canadians from Quebec started working in the area. Though they shared the Catholic faith with the Irish, tensions appeared tight between them. Articles ran in the local newspapers of 1893 stating that “no one but an Irish Catholic shall be buried in future in the potter’s field.” No reason was given for this “unusual arrangement”, but the consequences were severe. It was directed towards the French-Canadians who it seems the Irish were afraid that they were filling up their cemetery. The only alternative at the time was burial in Edson Cemetery, which meant unconsecrated ground. Shortly after that article appeared banning anyone but “regular Catholics” from burial at Saint Patrick’s, another ran stating that Father Garin of Saint Joseph’s Church, ministering to the French community, had purchased 30 acres a few miles beyond Edson Cemetery in East Chelmsford for the French Catholics. The lot that Father Garin turned over to be Saint Joseph’s Cemetery was originally meant to be a summer residence for the Oblate Fathers who were serving in Lowell. Father Garin died the following year and was one of the first to be buried at Saint Joseph’s Cemetery.
Another Catholic cemetery was incorporated a few years after Saint Joseph’s. Saint Peter’s Cemetery (no connection with Saint Peter’s Church) was a privately owned cemetery that ran along Boston Road between Spencer and Manchester Streets abutting Saint Patrick’s. The land was privately owned by Misters Donovan and Grey. The history of the cemetery becomes a little shadowy as the years pass. It seems that on several occasions Father Michael O’Brien, Pastor of Saint Patrick’s Church and Director of the Cemetery, attempted to buy the land from the two men. Since he did not meet their price they continued preparing the land for burials. Conditions between the two factions worsened over the years. Prices at Saint Peter’s were far lower than Saint Patrick’s. Rumors were spread that burial in Saint Peter’s might not be acceptable to the Church. More unsuccessful attempts at a buy out were made by Father Micheal’s successor, Father William O’Brien. There was even a time when Saint Peter’s was mysteriously being taxed by the City of Lowell as agricultural land though burials were taking place. Again rumors were spread that officials of Saint Peter Cemetery were selling the same lot to two different people. Saint Peter Cemetery finally was incorporated into Saint Patrick’s in 1911.
In the far corner of Saint Patrick’s is a gate rusted shut for many years. It is known as the Suicide Gate. In a time when psychology was a new field, people did not understand diseases of the mind. One who took his or her own life was believed to have had committed a grave sin. Burial in consecrated ground was not an option. Instead the body was brought in the back gate in an area set off from the rest of the Cemetery by trees and empty of markers. The practice of having such a gate does not appear common in other Catholic burying grounds of the period. It does show a sense of compassion for the families knowing their loved ones would still be near them. The gate is no longer used today. The only evidence of it being used as a burying place are the depressions which dot the area.
Next to Suicide Gate is the Saint Vincent de Paul area, also called the Poor Ground. The unbaptized infant, the poor, and the unknown were given burial here. The open grassy area is marked with a single stone bearing the name of St Vincent de Paul. The Cemetery has never turned anyone away from being buried in this area. This practice is carried on today. It is the quietest and somehow the most peaceful area of the cemetery.
About the time of the turn of the century a letter appeared in the Lowell papers stating what a disgrace and an eyesore Saint Patrick’s had become. The writer noted how maintained the other cemeteries in the city were being kept and questioned the upkeep of the property. In defense of the Cemetery it should be noted that Saint Patrick’s did not receive the funding that city cemeteries did. Paying the workers, buying new equipment, and caring for the upkeep of the property all came from the sale of lots.
A Perpetual Care fund was begun in 1898. The idea of Perpetual Care was new and at that time still voluntary. Depending on families for the upkeep of lots was not working as it had been in the past. People’s attitudes and schedules were changing. The first depositor was Mary A. Plunkett of Mount Washington Street. Mary deposited $100 “to pay the interest on the deposit each year to the Pastor of Saint Patrick Church, Lowell, Mass. for the care of the family burial plot in Saint Patrick Cemetery.” Mary Plunkett died the next month at the age of 36. A Cemetery official wrote that her payment of the Perpetual Care fund just prior to her death was an “act of God.”
Later in the nineteenth century, family lots were purchased and the care of these graves was left to the individual family. Some families, to define their lots, elevated the ground, surrounded it with curbing and, in many cases, erected wrought iron fencing and gates. It was customary during these years to make visits to the gravesite, frequently a Sunday activity was to cut the grass and stroll the grounds. The trolley line ran along Gorham Street, making visitation easier and even a funeral car was added to the trolley line. Photos of Saint Patrick’s Cemetery taken in the 1920s show a rather dismal view of the grounds, some graves receiving meticulous care, others over- grown. The policy at this time was that lot owners had free reign with the condition of their lots. This led to excess in some areas. The next decades would bring quite a change to the cemetery.
As the lower and middle classes, that had been ignored socially and politically, gained power and influence, their monuments and markers became more imposing and elaborate to show their status and heritage. A number of stone carvers established their firms along Gorham Street to display their wares adjacent to the cemeteries. Among them were such firms as Mahan and Meehan. One generation came to Lowell to cut the stone for canals and buildings. Their descendants discovered a profitable line of work in creating memorials as the Irish became successful and emulated what they saw in other cemeteries.
A beautiful addition to the cemetery was that of the chapel of Saint Bridget. Father William O’Brien often traveled home to Ireland. It is said that on one of his frequent trips he saw a chapel that he wished to have built as his own tomb. With the expansion going on in the cemetery, the time was right. The chapel and adjoining holding tomb were to be the centerpiece of the new area opening behind it. Made of stones taken from a local quarry, it reminds one of the Gothic oratories, which dot the Irish landscape. The connecting tomb was meant for use during winter burials. In the floor of the chapel an elevator lowers to the receiving tomb which could hold 300 bodies to await spring burials. (The practice of holding bodies is no longer needed with the advancement of equipment that can dig through the frost.) The dedication ceremony by Cardinal O’Connell was a major event in the Memorial Day weekend of that 1922. The Cardinal first visited the grave of his parents and then proceeded to the dedication of the chapel “in the names of Saint Bridget and Saint Patrick.” The paper included a description of the six stained glass windows in the chapel donated by local undertakers and monument makers. They also commented on the mosaic floor and marble walls. It was considered the finest building for its purpose of its day. The next year Msgr. William O’Brien would die and his body placed under the floor of the chapel, which he had built.
Many lots had become neglected over the almost 100 years since the cemetery was opened. The curbing surrounding family lots and the raised beds made it difficult to maintain. The decision was made to grade the Cemetery. This meant that the granite edging and the entire surface was to be leveled. The undertaking was massive. Much of the old curbing, which marked lots, was removed during the re-grading of the Cemetery. Each summer a crew of 18 to 20 men was hired to re-grade about 1000 lots per season. Yard One, the oldest part of the cemetery, would be most affected. The slate stones placed there by the pioneers of the last century were laid flat to help make mowing easier. The marble stones of the next generation were also laid on the ground. The granite curbing which surrounded many family plots was cut and the family name placed in the ground. Ironically the flattening of some of the stones has saved them from the effects of acid rain.
Between 1926 and 1936 many improvements were made to the Cemetery. The old wooden fence, which surrounded the property, was replaced with a metal fence and new gateway. Portions of this fence still exist today. In 1928 a new service area was added to store equipment. Many roads were re-paved, plantings added, and concrete burial containers were required, replacing the wooden boxes, which could collapse. Some of the curbing, which was removed, was cut to help build the exterior of the present office, replacing a wooden edifice, which preceded it. That building was moved across the street and still exists at this time. The new office, enhanced by a working fireplace, supplied much needed space for records and included a beautifully paneled waiting room for out of town attendees of funerals. A portrait of Cardinal O’Connell holds a place of honor over the mantle.
The last expansion of the Cemetery was begun in 1936. Then Superintendent John Meagher, who had succeeded his father Dennis Meagher as Superintendent, proposed to open the last untouched area of the Cemetery that ran from the Chapel to Boston Road. A whole new philosophy of Cemetery design had developed since the gates were first opened. Mr. Meagher referred to portions of Saint Patrick’s as having the appearance of a “stone yard.” Earlier superintendents did not have the foresight to see the Cemetery as anything more than a burial ground. Mr. Meagher took into account the contour of the land when designing roadways. Instead of straight roads meeting at ninety-degree angles, he designed wandering paths. Noting a trend in cemetery design replacing many closely spaced monuments with a single large monument with many flat stones, he designed the area for future shrines to be installed and included plantings separating one area from another.
By 1946 the re-grading and many other renovations begun two decades earlier were completed. The Cemetery had been converted from a “stone yard” to a “source of consolation and inspiration to those who visit, not only for our generation, but those to come.” It was also at this time that it was noted that the Cemetery was quickly filling with no room for expansion. A search for new land was begun by Monsignor Hyder who was Director and the Pastor of Saint Margaret’s Church. In 1960, Saint Mary’s Cemetery was opened in Tewksbury by Archbishop Richard Cardinal Cushing. Though few new lots currently remain at Saint Patrick’s, future burials in owned lots will continue for many years.
During the Centennial year of the Cemetery a writer composed the following:
“Unknown they may be now and forgotten by all but God yet the earth above their narrow cells is as sweetly beautiful as love and reverence can make it. None can say of us that we have failed in this final debt of Christian duty. And so long as time endures, God helping, no effort will be spared to perpetuate this tribute of loving veneration.”
Saint Patrick Cemetery is the second oldest Cemetery in the Archdiocese of Boston. It is the consecrated place of rest of more than one hundred thirty thousand who have gone before us. They are our mothers, fathers, founders of our community, those who helped define who we are. And some are known only to God himself. The Cemetery that is today is a monument to those who have gone before us, a lesson for the current generation and a treasure for the future.
Military Funeral for Sergt. Brick, WWI Veteran - 1920
On September 30, 1920 a Military Funeral was held for Sergt. George W. Brick who died in France during the first World War. He was buried in France during the war. His remains were the first of the WWI Veteran’s to be re-patrioted in the city of Lowell. A memorial service was held, followed by a parade, and the the remains were buried in at St. Patrick Cemetery in Lowell. The following story is from contemporary newspaper articles, the pictures were supplied by descendants of Sergt. Brick.

Funeral Procession lead by the O. M. I. Cadets on Gorham Street
Sergt. George Brick, former member of Co. C of the old Sixth regiment, who died from pneumonia while serving with the Fourth pioneer regiment in France, will receive a military funeral in this city Sunday afternoon according to the present plans of Lowell Post of the American Legion, Co. C. Associates, Co. K Associates and the O. M. I. Cadets. His body arrived from overseas yesterday morning and is now lying in the funeral parlors of C. H. Molloy’s Sons from whose establishment burial will take place.
Plans for the funeral were formulated last evening at a meeting of Co. C Associates. This was presided over by Maj. James Powers who was a captain in Co. C. Sixth Regt. M. V. M. when Sergt. Brick was in its ranks. The major spoke of the sterling qualities of Sergt. Brick, his keen interest in militia affairs and his first class service with the A. E. F. It was with deep regret that the boys of Co. C learned of the death of their top sergeant. Maj. Powers said and it is only fitting that they should turn out to honor a true soldier. Eli B. Hart reported that Co. K Associates would turn out with Co. C and that a large delegation from the American Legion would also be in line. Rev. Dennis A. Sullivan O. M. I. got in touch with Maj. Power earlier in the evening and said the O. M. I. Cadets would attend the funeral march and would provide their drum corps to furnish fitting music. There will also be a large delegation from the Ladies Auxiliary of the 101st Regiment.
All delegations attending the funeral are requested to report a Legion headquarters not later than 2 o’clock Sunday afternoon as the funeral will leave C. H. Molloy’s rooms at 2:30 0’clock sharp. The O. M. I. Cadets will meet in their own armory in High Street.
Soldier’s Burial for Sergt. Geo. W. Brick
Veterans, Semi-Military and Civic Organizations Assist at Funeral
The funeral of Sergt. George W. Brick whose body was returned from overseas the latter part of the week, took place Sunday afternoon from the rooms of Undertakers C. H. Molloy’s Sons in Market street. It was conducted in a military manner and was most impressive, various soldier and sailor veterans organizations as well as a large circle of relatives and friends being in attendance. Maj. James Powers had charge of the military formations

Funeral Hearse on Gorham Street near St. Patrick Cemetery
The funeral procession left the undertaking rooms promptly at 2:30 o’clock and at the head of the line was the O. M. I. Cadet Corps under command of Lieut. Brennan. It was escorted by its drum corps. Sergt. Brick was formerly a cadet. Following the cadets were members of the Lowell Post of the American Legions, members of Co. C of the old Sixth regiment, veterans’ of the U. S. navy and other veterans who have no club connections. The following are the delegations which were in line: 101st Ladies Auxiliary, Mrs. William H. Merritt, Mrs. George Underwood, Miss Catherine McCaffrey, and Miss Mollie O’Sullivan; Loyal Order of Moose. Edward Mailoux, Edgar Mailoux, Frank Hennessy, William F. Booth, George R. Ellis and Ernest Parsons; Co. C Associates, Lieut. Daniel Brennan, Lieut. Robert Ginivan, Lieut. William McShane, Sergt. Paul Spilliane, Daniel Coakley, Joseph Willett, Arthur Berard, John Lawless and James Riley. The pall bearers who marched at each side of the hearse were: Lieut. George D. Crowell, Sergt. Ambrose Ready, Edward Earley, John Sullivan, Michael Thynne and naval veterans, William Demarest, Arthur Moran, Thomas Burke, John McPadden and John Scholes. The firing squad was under the direction of Sergt. Eli B. Hart and was composed of the following: Daniel F. Sullivan, Leo R. Pope, John F. Hafey, Joseph P Brassilli, Joseph H. McShane, John Gormley, Frank Mullen, Ernest Brown and Buglers Joseph Mahan, Frank Merritt and William Caril.
Burial was in St. Patrick’s cemetery where the burial service was read by Rev. William W. Noonan, O. M. I. “Taps” was sounded by the buglers, and the firing squad fired three volleys as the parting military salute over the soldiers grave. Undertaker C. H. Molloy’s Sons had charge of the funeral arrangements.
Panoramic Photographs of St Patrick Cemetery taken from Gorham Street on November 14, 1930
$10,000 Iron Fence at St. Patrick's Cemetery
From the – The Lowell Sun – Friday November 6, 1931
After months of diligent labor on, the part of workmen, the new $10,000 iron fence around St. Patrick’s Cemetery has been completed, and stands now for the admiration of the people of Lowell as an accomplishment beautiful in itself and one that adds immensely to the appearance of the ground which it encloses. But it is more than a thing of beauty, more than, a decorative addition to a cemetery that is second to none in qualities of appearance, it is a monument to those men whose untiring efforts have made its erection possible, chief among whom is Rev. Dr. John J. McGarry DCL., director of the cemetery, and pastor of St. Patrick’s church.
Late in August of the Present year, work was begun on the erection of the fence through the instigation of Fr. McGarry, whose spirit had dominated the ambitious improvements that have been made in the cemetery since 1927 under the personal supervision of Superintendent John J. Meagher, assisted by Assistant Superintendent Francis Redding. The old white wooden fence that had surrounded the enclosure for so many years did not quite correspond with cemetery additions and improvements. Graves had been regraded all curbstones had been removed in order to lend a. touch of uniformity to the whole, and finally a large number monuments had been reset.
The beautification program begun by Dr. McGarry and the officials of the cemetery was continued by, the architect who designed the fence, James Flaherty, who evidenced a keen appreciation of just what was needed to lend the finishing touch to the whole scene in his first plans for the erection.
The finished product of his art is the real test of that appreciation, and it is evident that it was faultless. For nothing could more suitably adorn the level, well-kept stretches of the cemetery than the 1600 feet, of dark green iron fence, trisected as it is by gateways that are in themselves a credit to the efforts of the craftsman.
The pillars that flank the gateways are of Weymouth seam-faced granite in colors of brown, yellow and grey, surmounted and based by blocks of well-finished Barre granite that was furnished by the Lowell Monument Company. The pillars which are about 10 feet in height, are set back about 10 Yards from the fence proper, and are joined with the same by low walls of seam-faced granite that describe a graceful semi-circle about ground plots that are to furnish beds for flowers and plants in due time. Massive iron gates are swung from each pillar and weigh one-half ton each. The gates are double swinging and have an attractive fleur-de-lis design adorning each extremity vertically.
The fence itself is composed of eight-foot sections, which are five feet in height. A three-inch I-beamed post occurs at every eight-foot interval, and each post is surmounted with an adornment. After the workmen had completed the laying of the fence material, the iron was given two coats of red lead to serve as a preservative, and then one coat of bronze green was applied with most satisfactory results.
New Administration Building - 1935

The annual report of Perpetual Care receipts is convincing proof of the increasing appreciation of this form of what might be called “Cemetery Insurance”. More and more those whose lots were acquired before the new system.” of Perpetual Care was inaugurated are coming to understand the advantage of securing Perpetual Care and thus ending for all time their worries about the care of their lots.
The annual report of Perpetual Care receipts is convincing proof of the increasing appreciation of this form of what might be called “Cemetery Insurance”. More and more those whose lots were acquired before the new system.” of Perpetual Care was inaugurated are coming to understand the advantage of securing Perpetual Care and thus ending for all time their worries about the care of their lots.
But, besides the considerable personal advantage, thus gained, they enjoy, also, the satisfaction of knowing that they have helped materially to the success of the great project now in progress, of making St. Patrick’s Cemetery a place of peaceful beauty that will forever proclaim the Christian teaching of respect and enduring love for the departed.
To have done one’s just and proper share toward realizing that blessed purpose may well be a source of joy and honest pride.
During the year just passed the work of removing curbings and regrading lots has been continued. In a few years this will have been completed and the next step in plans for beautifying the Cemetery will be undertaken.
The most important work of last year was the construction of a much needed administration building. Now, at last, we have ample space for the transaction of Cemetery business and practical protection for valuable records. Besides the usual office features there is a spacious waiting room for those obliged to wait for out-of-town funerals and a convenient private office where confidential matters may be discussed with the superintendent or his assistant. It is gratifying to know that the building and its interior arrangement have elicited many favorable comments from superintendents of other cemeteries who have come to inspect it.
Built of stone salvaged from curbings the new building is a memorial to all those from whose lots the curbings have been removed. The Cemetery management likes to believe that this new edifice and the growing beauty of the entire Cemetery will be not only a source of justifiable pride to the lot-holders but that it will constitute a splendid beauty spot for Lowell as well.

New Administration Building at St. Patrick Cemetery
A new administration building at St. Patrick’s cemetery, made almost in its entirety from curbings which had been removed from cemetery lots, has been completed, and it stands not only as an addition to the beautiful structures of the city but also as a tribute to the zeal and cooperative effort of a few men.
Originally, it was the intention of cemetery authorities to remodel and enlarge the old administration building and to provide a fireproof section to safeguard the cemetery records. But it was soon discovered that the old building had reached the last stages of decay and that a complete new structure was called for.
How to construct a new up-to-date building with the very limited amount set aside for improvement is the old office was not an easy problem. In fact, it would be a problem still unsolved were it not for some fortunate circumstances and for the splendid cooperation of all those engaged in the work.
The curbing which had been removed from cemetery lots provided an abundance of granite of the finest quality and of sufficient variety in tint and texture to relieve the monotony and heaviness of the low granite walls. The type of masonry also contributed to that end.
A Tudor Arch
The main door is set in a typical Tudor arch. The door is of heavy oak with iron latch and hinge-straps and a small window of leaded glass. In the interior the Tudor effect is carried out by the oak-paneled walls and by the arch which divides the lobby from the office section. On entering, on sees a rough granite fireplace, the stone mantelpiece supported by heavy granite corbels. The structure of the beautiful piece was also made possible by use of curbings removed from the cemetery lots.
Hung on the wall above the fireplace is a splendid old copy of Ruben “Descent from the Cross,” to the left of the lobby is the superintendent’s office, adjoining which is a smaller room for drawing and map-making. To the right of the lobby is the office proper. Here the files and records are kept in the fireproof cabinets and here, too, most of the cemetery business is transacted.
The floor of the office is linoleum tile; all the other floors are asphalt tile, and all sub floors are of concrete. The building is air-conditioned by a Delco “Conditionair”.
Splendid Co-operation
As has been said, this building could not have been constructed were it not for the splendid co-operation of those immediately interested in the work. Guiding spirit of it all was Rev. John McGarry, D. C. L., director of the cemetery, whose selective taste and boundless energy are in large part responsible for the beauty not only of the present building but also of the appearance of entire cemetery.
Mr. James Charles Flaherty, the architect, besides drawing the plans for the building, gave a great deal of time and attention to the matter of cutting expenses. Frederick F. Meloy spent many evenings discussing costs and methods of construction while John J. Brady, the contractor, made a very generous donation of materials.
Supt. John J. Meagher and his assistant, Frank Redding, worked unstintingly to bring the project to a successful conclusion. Finally, the contractors, one and all, showed an interest and a spirit of helpfulness far beyond the letter of their contracts.
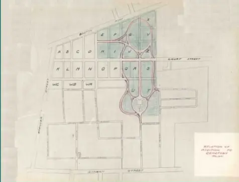
New Addition Saint Patrick Cemetery Lowell, Mass - 1936

New Addition, Saint Patrick Cemetery, Lowell, Mass. by John J. Meagher C. E., 1936
Introduction
This addition when completed will become a part of Saint Patrick’s Cemetery in Lowell Massachusetts. The Cemetery is the property of the Roman Catholic Archdiocese of Boston Massachusetts, and was incorporated in 1832. Originally a plot of four acres set aside for burial purposes in the early days of the city of Lowell the Cemetery has grown through additions made at various times to sixty-five (65) acres. All but twelve (12) acres have been sold. It is the development of these twelve acres that constitutes the subject matter of this thesis. The addition will be laid out on the park plan with winding avenues and paths.
In the early days the development of the Cemetery was much the same as the average country cemetery. In 1860 an addition of ten acres was made which was laid out in rows and paths on the so-called “checker board system’. Practically no restrictions were placed on the lot owners, each lot owner exercised his own ideas with the result that the Cemetery soon became filled with curbings and monuments. About forty acres had been sold in this manner up to 1919. In that year curbings were banned. A ruling was made that all monuments must have foundations and numerous other restrictions made tending to correct past mistakes.

Twenty men have been employed each summer for the past eight years. Fifty thousand dollars have been spent and approximately twelve thousand lots of various sizes have been regraded covering an area of twenty-six (26) acres. About fourteen (14) acres of the old sections remain to be regraded. These facts give some idea of the cost of poor layouts and lack of proper restrictions. These sections adjoin the proposed new addition and will have a bearing on the design.
Requirements
The area under consideration will be ample for the future growth of the Cemetery for approximately twenty-five years. Being within the city limits we are hemmed in on all sides. When this land is sold a new location elsewhere must be found. Estimating the demand for various sizes of lots is a problem especially over a period of twenty-five years. We know for instance, the ratio of single graves to four grave lots sold during the post five years. On this basis we could allot proportional areas to these sizes. Business conditions, however have a definite effect on these ratios. During the depression there was a definite trend toward small lots.
When the rule that all lot owners must buy their lots with Perpetual Care was put into effect the natural reaction was to buy small lots due to the increased cost, although lot owners were given a year in which to pay the Perpetual Care. It is very probable that most sections will be laid out in small plots with a small percentage of the lots in the better locations laid out as ten grave lots or over.
Organization
The Cemetery is indirectly in charge of a Director who represents the Archdiocese of Boston. Weekly reports on the conduct of the Cemetery’s business are made to him. Plans and changes such as contemplated in this addition must receive his approval. Directly the Cemetery organization consists of the Superintendent, Assistant Superintendent, Foreman, and about twenty-five workmen. With the possible addition of several more workmen this organization will supervise the work of building the new addition and the maintenance afterward.
The Site
The site is composed of two long flat slopes with a valley in the center. In one corner of the addition there is considerable ledge., so much so that it will be left where it is. It is planned to plant rock garden plants at the base of the outcropping and crevices and keep, insofar as possible, the natural beauty of the spot. There is practically, no vegetation on the site. Trees and shrubs must be supplied. The loam is of a rather poor quality and must be built up with humus and fertilizer before satisfactory lawns can be grown. The sub-soil is yellow sand. In about one half the area, five feet down, is a layer of clay. It is possible that sub-soil drainage must be supplied for this area. The City of Lowell built a $40,000.00 trunk line sewer through the valley to drain certain areas beyond the Cemetery and the Cemetery has permission to drain into this sewer.
Topographic Survey
A topographic survey will be made. Three avenues cross the addition at the present time. One avenue is of macadam construction running in a longitudinal direction. It is well placed for drainage purposes and meets a cinder avenue at right angles. The cinder avenue to in the valley dividing the two long flat slopes and is placed just about where a topographical study would place it. Both avenues are continuances of main arteries to the older parts of the Cemetery. For the most part the contour of the ground will determine the location of the new roadways. In one or two instances the determining factor will be easy access or clearance.
Planting and Landscaping
The addition is bounded on the west by a public highway, on the north by a row of houses, on all other sides by older parts of the Cemetery. It is planned to insure privacy on the west and north by leaving sufficient planting space for evergreens and shrubs to form a heavy, screen and at the same time to act as backgrounds for monuments. Specimen trees and shrubs will be set out on the lawns in prominent places, mostly in irregular shaped spaces that cannot be used for burial purposes beds of annual and perennials will be set out.
Water Supply
Two inch galvanized iron mains with one inch offset lines will be set out in the three foot reserve n the side of the main avenues. Every sixty feet, a standpipe and faucet will be erected. There is a possibility that the advantages of a sprinkler system will be investigated although these systems are rather costly to build and maintain.

Chapel & Tomb Located at entrance of New Sections
Building
The Chapel and Tomb are located at the entrance to the new addition. From this point one may look down on the whole development.
Cost of Project
The Cemetery has owned this land for a number of years without developing it with the exception of the avenues mentioned elsewhere. Without the original coat of the land the estimate of the total cost of the project to $54,000.00 covering such items as regrading, loam, fertilizer, grass seed, planting and, landscaping, drainage water, concrete markers, avenues (cinders), engineering and overhead. This expense will be spread over a period of years.
Control or Base Lines
Description
In order that the computations of this thesis could be connected with definite points on the grounds, it was necessary to provide two bass lines one extending north and south along Immaculate Conception Avenue, the other east and west on Saint Martin’s Avenue.
The north and south base line is five feet offset from the east side of Immaculate Conception Avenue. The East and West base line is six feet offset from the north side of Saint Martins Avenue. Offsets were necessary because of’ a line of large poplar trees on the side of Saint Martin’s avenue also on Immaculate Conception Avenue.
When the base lines were definitely established they were permanently marked with stone bounds. These bounds were six inches square on top with the regulation drill hole cut in. They were five feet long and weighed about two hundred pounds. The location of these bounds are shown on the general plan. All computations are referred to these base lines. The survey is built around them, a sort of “X” and “Y” axis.
Transit Lines
In addition to the bass lines several transit lines were run off the base line usually at right angles to locate boundaries of the addition, also existing roadways and buildings. The transit lines are used also to tie in definitely the points of curvature and the points of tangency of the curves of the new roadways.
Transverse Survey
Existing Conditions
The land under consideration was bought in two separate parcels. One parcel was obtained as part of a purchase, which had been laid out as a Cemetery for other owners, and was known as Saint Peters Cemetery. The other parcel was a tract of land containing about five acres known as the Parker Estate. These parcels were bought years apart.
The general plan shows bow the previous owners sold lots along the boundaries and avenues oftentimes in scattered locations. In some cases clearance requirements to avoid these lots determined the location of the new roadways in this thesis.
The Survey
As stated previously this survey is built around two base lines. In describing the various steps it might be more clear to refer the reader to the general plan. The transit was set up at a point eight feet from the stone bound marking the sidewalk line of Court Street. This point was offset five feet from the east side of Immaculate Conception Avenue to clear a line of poplar trees.
The foresight was taken in a southerly direction on a five-foot offset from the stone bound marking the southwest corner of Section 0. The instrument was clamped and a line of spikes for measuring purposes were set. Later stone bounds were put in on this line to mark it permanently.
The transit was then moved to the intersection of Immaculate Conception and Saint Martins Avenue where a foresight and back-sight to previously set stone bounds were made and a right angle turned, using a magnifying glass to read the vernier. This procedure was repeated several times until the accuracy of the angle was assured. This line was then marked with stone bounds.
The East-West base line was found to be six feet offset from the southwest corner of Section 0. All measurements are referred back to these two lines.
Whenever a stone bound was set extreme care was used to insure accuracy. Among the precautions used were: Careful alignment, Double measurement of lines, use of a plumb bob in measuring grades and a check on the measurements by turning a right angle on the transit to point of closure of the transit line.
The transit lines shown in red on the general plan are all at right angles with each other with the exception of the two-foot offset from the property line on Boston Road. From them the outlines and boundaries have been located. Additional information was secured from previous surveys and used in supplying missing data.
Location of Roadways
The principal purpose of a topographic survey is to furnish the engineer with facts concerning the surface of the area to be developed. The engineer must keep in mind that the purpose of a roadway is to give easy access to the points to be reached. Next, that the roadway be built where it fits the ground. Then he must provide proper drainage at minimum expense. He must also consider where the best grades and lines can be obtained with the least amount of earthwork. Then also the lines and grades should be determined with a view of giving the road the most attractive appearance consistent with the other requirements.
A modern Cemetery should have the characteristics of a park and for this reason roadways should be built on graceful lines. The roadways should not be more then three hundred (3,00) feet apart. In other words no lot should be more than one hundred and fifty (150) feet from an avenue. Sharp turns should be avoided wherever possible. Long sweeping curves are far more practical and beautiful.
Keeping in mind these essentials governing the design of roadways, we have the following conditions There is a tar macadam road (Saint Patrick’s Avenue) crossing a cinder road (Saint John’s Avenue) and meeting another cinder road (Immaculate Conception Avenue) at right angles. The latter avenue leads to the Cemetery service buildings and Court Street and is a much-traveled roadway.
Obviously these roads are fixed and permanent. For certain distances along each of the above named roads the trunk sewer owned by the City of Lowell extends. The Cemetery gave the City the right of way through these avenues in return for drainage privileges. Two other conditions Governing the location of roads were: The new addition is surrounded on three sides by older sections of Saint Patrick’s Cemetery necessitating crossing the addition to reach parts of the older Cemetery, and Lots sold by the owners of the cemetery previous to its acquisition by Saint Patrick’s Cemetery.
Fortunately the three avenues referred to as being fixed are located about where a topographic study would place them although they are part of the original “checkerboard plan”.

We have an example of this in the cemetery at a point where it did not seem advisable to cut a road. Traffic is forced to make several awkward turns to reach a point that was almost in a direct line with a main avenue. Pedestrians simply take a short cut across the lots, wearing a path through the lawn.
In the new addition at least two short avenue extensions have been placed at points where a study of the topography would question such action. In both cases the reason for doing so was easy access to other parts of the Cemetery.
Beginning at the chapel, which might be considered the entrance to the new addition, a study of the general plan will show that the roadways in general follow the contour of the land and also provide easy access to older parts of the Cemetery.
On the same axial line as the chapel and tomb a large ellipse has been laid out the major and minor axises being determined by the contour of the ground and clearance required to get by lots already sold. Leading from the ellipse mostly by means of parabolas are other avenues designed to divide the land into sizable sections. On the subject of roadways with relation to lot sections, it is the writer’s opinion and observation that the larger the section the more opportunity for landscaping effects. In other words many cemeteries have been spoiled because the natural beauty of the grounds presents a “cut up’ appearance. They have too many roadways too close together resulting in waste of land and costly maintenance.
By rearranging the roadways of the old plan enough space has been saved to provide for all the planting space required to beautify the new addition.

The common practice in laying out the curves was to join two points by a straight line. This line became the chord of the curve or parabola. The offset from the tangent in some cases was scaled from the topography plan where the curve had been previously sketched free hand. When the curve was a reversed parabola the second offset was found, if possible by proportion. By adopting this method the tangent for both curves is on a straight line simplifying the fieldwork of laying out the curve. When a simple parabola was used all distances of the triangle surrounding the curve were found by trigonometry. Invariably this developed into a rather complicated process because of the number of unknown distances, which in this case were fixed. In the case of the reversed parabola some of the distances could be assumed.
As a general rule the roadways will be sixteen (16) feet wide with two-foot reserves on each side. This width is adopted because the roads leading from the older sections are this width although it would be more desirable to have eighteen (18) foot roadways.
Drainage
Originally it was the intention of the writer to make a drainage study a part of this thesis. This idea was abandoned when it became obvious from the few test pits that were opened that sub-soil drainage is absolutely necessary.
Clay was found at a depth of four and one half (4 1/2) and five (5) feet in certain parts of the addition. With clay at this depth sub-soil drainage is imperative. It is possible that the layer of’ clay is seven (7) to eight (8) feet deep in other parts of the cemetery and drainage in that case would be unnecessary. To make a comprehensive test would require the opening of a number of test pits, which at this time would constitute a large expenditure of money and would also cause considerable delay.
From the facts at hand we know that at least in some parts of the addition sub-soil drainage is required. This work should be done before the system of roadways is built in order that no unnecessary digging will be done after the roads have been constructed. The sub-soil drainage system will consist of a system of lateral lines crossing the lot sections and deep enough so as not to interfere with opening graves.
The sub-soil drainage question together with the water system is a thesis in itself. The important thing to remember is that these two questions should be solved using the topographical map and location of roadways as determined by this thesis as a basis for much study, before any construction in started.
It is possible after all facts are known that the same trench and pipe lines used for sub-soil drainage can be used for surface drainage. This however is not common practice. If it can be done in certain places considerable time and money could be saved.
The subsoil drainage trench is usually two (2) or three (3) feet deeper then the deepest grave in a section. The pipe is usually akron pipe laid with open joints., and covered with twelve (12), inches of trap rock. The trap rock is covered with a sod to prevent filling the void with the backfill.
On the other band the surface drains should be akron pipe with sealed joints laid at a depth of three to four feet and with sufficient pitch to carry off the surface water from the surrounding sections. Intakes or catch basins should be provided at frequent intervals so as not to allow the runoff to assume proportions that would cause wash-outs of the avenues. The catch basins should be provided with settlement basins extending three (3) or four (4) feet below the intake and outlet pipes. These basins would trap the leaves and rubbish before it could clog the system.
The water caught in this sub-soil system is usually a thin, small stream flowing steadily all year while the surface drainage system provides for a large swift run-off in a short space of time. That is why it is not practical to design both systems in all cases for the same purpose. The practice now in force at the cemetery is to operate each system independent of the other. The writer has seen an eight (8) inch surface drain operating to its full capacity after a quick thaw in the spring. The force of the water was tremendous. Under these conditions open joint pipes would be undermined.
A study of the problem will probably, result in using independent pipe lines with the possibility of using the same trench in the avenues,
Subdividing Sections Into Lots
In sub-dividing sections into lots each cemetery has its own problem. The lot sizes will depend on the financial status of its clients. The larger the lots the more beautiful will be the cemetery in a general sense.
There is a decided tendency at the present time to purchase small lots. This tendency resulted in the over crowding of monuments a serious problem which confronts practically all cemetery authorities interested in keeping their cemeteries out of the “stone yard” class.
To combat this condition the Cemetery passed rules several years ago that only one monument could be erected on a lot. Alternate lots were sold with the agreement that no monument could be erected. Twenty (20) percent of the cost was deducted from this type lot and added to the lot that had the monument privilege. Recently the rules were made more stringent and two grave lots and under in size were denied the privilege of monuments. It all cases where monuments are not allowed the lot owner has the privilege of placing a flat granite slab three (3) feet by one (1) foot on the lot flush with the grade, as a marker.
With these rules and safeguards we have relieved the situation somewhat but I cannot say the problem has been solved. This is due principally to the fact that our sections have been small, the contour of the cemetery for the most part is flat or gently rolling and large areas can be seen from almost any point, despite the fact we have been planting trees, shrubbery and evergreens in various vantage points as screens. Another reason is the demand for small lots is so large. Rarely do we sell a lot larger than ten (10) feet square.
It can be seen from the foregoing that careful planning to necessary to avoid the over-crowding of monuments. This consideration will no doubt be a controlling factor in the sub-division of the sections into lots.
The principal reason for changing from the present system to the park plan is due to the fact that the latter plan lends itself with its winding roads and curves more readily to landscaping effects. This change will help to relieve one serious defect of the present system namely that so much area can be seen at once. The present system of marking the lot corners will be carried out in the addition. Numbered concrete markers will be set on the lot corners flush with the grade. Except in rare instances the paths will be two (2) feet wide and grassed over. They are rarely used but in case anyone has a conscience about such matters they are there for use. These paths also serve as spaces for the rows of lots.
In all sections except single grave sections it is planned to landscape the areas well in advance of sale so that the lawns and shrubs will be well-established before any lots are sold.
Landscaping
On the west and north sides of the new addition it will be noted that the old plans provided a ton (10) foot road along the boundary. The new layout closed this road and the land will be used for boundary planting. This will give privacy on the Boston Road sides will also screen out the houses on the north and will form a background for monuments within the grounds.
This planting will very in height according to whether it is desirable to screen out or show a desirable view within the grounds. The outline of the beds on the inside will be winding and varying in width.
The centers of sections, especially irregular tracts will be reserved for planting. Triangles formed by the inter- sections of roads will be planted to shrubs, perennials or annuals as the case may be, depending on the size and location of the triangle.
We will endeavor to keep the lawns broad and undulating, with specimen trees and shrubs placed at vantage points. This planting together with that allowed to individual lot-owners such as evergreen base plantings for their monuments should break up the monotony of monuments and lawns.
A special spot, and in my opinion one that can be developed into a real beauty spot is the ledge outcropping near the chapel. Rock garden plants placed in the crevices of the rock and large growing perennials at the base of the outcrop- ping would transform this location into a beautiful and peaceful garden.
This discussion of the landscaping of the grounds is general and brief and is intended only to give a general idea of what the writer had in mind in placing roadways and deter- mining the shape of the section. For instance on the north side paralleling the boundary the roadway is kept sufficiently far away to allow one or two lots, and the boundary planting. The same procedure was followed near the ledge where topography was not a determining factor.
A photograph of a screen planting in the cemetery, typical of the plantings contemplated for the boundaries accompany this article. This planting is used to screen out an older section of the cemetery until such time as it can be regraded.

Cemetery Section Before Regrading circa 1930
Regrading
Although not a part of this thesis, plans for a new addition could not be discussed without some mention of the regrading operations that have been going on at the cemetery since 1926.
Many of the sections that have been regraded adjoin the new addition, and the paths, roadways, and sizes of lots in these sections will have a direct bearing on the design of lots in the addition.
Cemeteries no doubt have been regraded before but within the writer’s knowledge not on so large a scale. Saint Patrick’s Cemetery is one of the largest cemeteries north of Boston, containing eighteen thousand (18,000) lots and over sixty thousand (60,000) interments. Through lack of proper restrictions dating back many years, the cemetery was literally covered with curbings, posts and monuments, many of the latter without foundations.
In 1926, the present director Of the cemetery Reverend John J. McGarry, D. C. L. felt there was need for a general cleaning up and regrading. Consequently the writer was instructed to regrade a section to serve as a “model” section. The cemetery was fortunate in having given a deed of right of burial only, that enabled the authorities to exercise considerable latitude of judgment on what was right and proper, in the way of enclosures and monuments and the removal of same.
Naturally the removal of curbings aroused considerable opposition from lot-owners in the first sections regraded, but the work was continued in the face of this opposition because the authorities felt that the improved appearance of the cemetery would eventually bring about a changed opinion on the part of the lot-owners.

Cemetery Section after Regrading circa 1935
Fortunately the change in sentiment did come. From a most dilapidated appearance the property has become an attractive neat and well-kept lawn cemetery, a credit to the community and a source of real satisfaction to all who had a part in bringing the change about.
Before and after pictures of the improvements are being submitted with this thesis. These pictures show how the nameplates were cut out of the curbings, and laid flush with the grade. Numbered concrete markers were set on the lot corners, and all monuments were placed on foundations and realigned. Base plantings around the monuments were encouraged and wherever possible the cemetery set out specimen tress, evergreens and shrubs. The lawns are now kept trimmed by power- lawnmowers.
No charge was made for these improvements. Lot-owners who benefited by the improvements however were asked to place their lots under Perpetual Care on time payments if necessary. The response was gratifying. The Perpetual Care fund has risen from $18,000.00 in 1926 to over $300,000.00 in 1934.
The income from this fund will serve as a guarantee to the lot-owners that the cemetery will not fall back into its former neglected end unsightly condition.
Summary
The change that has taken place in public sentiment regarding the care and the improvement of our cemeteries, is as marked in the development of its expression as in the changed physical conditions it has been the means of producing. And while there exists a marked change between the appearance of the cemetery of the past and that of the present, the period of this development covers only a comparatively few years.
When we use the term “modern cemetery” one assumes that reference is being made to the latest development in the cemetery field. There is nothing more recent in cemetery practice than the “park plan”. There has been however a development of this plan called the memorial park plan, which forbids monuments and stone markers but allows bronze markers set flush with the grade. The bronze markers turn verdigris with age and blend into the lawn. This type cemetery resembles a park and is very beautiful.
The objection of those who do not care for the memorial park idea is that it resembles a park more then a cemetery. This development of course is one extreme and the old fashioned cemetery overcrowded with monuments is the other.
We have gone a long way in recent years to educate lot owners to the advantages of the modern park cemetery, but I do not think they are ready at this stage to give up the idea of monuments. To change old and well-established ideas, the work of centuries requires persistent effort and careful education.
Keith Academy - 1970
Keith WWII Memorial moved to new location

After World War II, a memorial monument bearing the names of all the graduates of Keith who lost their lives during the Second World War was erected by the Keith Alumni. The 4000-pound solid granite stone was then set in front of the school.
Now that Keith has been closed the monument has been moved to a new location. It now stands in the Rock Garden near the chapel in St., Patrick’s Cemetery. In the background is the American Flag the symbol of liberty which those whose names are listed gave their lives.
Under the direction of Msgr. Raymond Hyder, former business manager at Keith Academy, and present director at St. Patrick’s Cemetery, the massive stone was moved to it’s new location.
The huge gray stone now will recall through eternity the memory of those graduates who gave their lives for this country.
Group Restores, Marks Old Graves - Boston Globe, 2003
Boston Globe Article – Nov. 13, 2003
Many thanks to Christine McConville and the Boston Globe for permission to use her article “Group Restores, Marks Old Graves” on St. Patrick Cemetery’s website. Christine McConville’s email is cmcconville@globe.com
By Christine McConville, Globe Staff, 11/13/2003
Patrick Tiernan was 16 years old when he arrived in Lowell from Longford, Ireland, in the mid-19th century. He ventured out to celebrate his first Fourth of July, and was hit in the face by a canon blast.
He died soon after from his injuries, and the story of his brief life is etched on a gravestone, cracked and crumbling, in a Catholic cemetery in Lowell.
”I wish we had gotten to that one sooner,” David Duncan MacKean said last Saturday morning, as he wandered through St. Patrick’s Cemetery, where Tiernan is buried.
In recent years, MacKean has restored 750 gravestones of Lowell’s early Irish immigrants. ”These stones have a wealth of stories,” said MacKean, who teaches fifth grade in Nashua and spends his spare time at St. Patrick’s.
While MacKean focuses on restoring old graves, others are trying to locate people in unmarked ones.
Donna Reidy said she hopes that by placing markers on those plots, her group may honor Lowell’s early Irish immigrants and their important role in building the city.
”There and there,” said Reidy, a member of Lowell’s chapter of the Ladies Ancient Order of Hibernians, a charitable group that supports Irish and Irish-American causes, pointing out a few unmarked spots of ground where people are buried in the densely populated graveyard off Gorham Street.
”I’m just trying to honor these people who did so much, and had so little . . . They contributed a lot to Lowell. They deserve a marker,” she said.
In the past two years, she been able to raise enough money from private donors to pay for six markers inscribed with 45 names.
Since MacKean’s Irish ancestors arrived in Lowell in the 1880s, each generation has been affiliated in some way with St. Patrick’s Church in Lowell’s Acre. His fascination with history led him from the city’s first Catholic church to its first Catholic cemetery.
”I always say history is a verb and every grave is a story,” he said.

After buying up swatches of land from Chelmsford farmers, the Boston Associates — as the capitalists were known — needed laborers to dig the canals, which would harness the river water, and build the mills, where the manufacturing work began.
They hired a charismatic Irish immigrant named Hugh Cummiskey, who recruited 30 Irish laborers. In 1822, they walked from Charlestown to the city-in-waiting.
MacKean said that the mill owners wanted the Irish to do the work, and then move somewhere else. But after the workers settled into what was known as Paddy Camp, their wives and children followed.
In 1827, there were 52 Irish Catholics living in Lowell. By 1831, there were 400, according to MacKean’s data. That same year they established St. Patrick’s Church, and began living around it, in what is known today as The Acre.
Life was hard, and people died young. When the closest Catholic cemetery, St. Augustine’s in South Boston, filled up, the Lowell Irish established their own burial ground, next to a Protestant burial ground.

Because at that time, a gravestone cost $3 — a laborer’s weekly wage — not every one could afford one. Even Cummiskey, who died in 1871 at age 82, didn’t have one, until recently. The few Catholics who could afford gravestones bought them from Yankee stone carvers, during a time when Catholics and immigrants were often treated with suspicion and scorn.
The fashion of that time was to decorate the slate stones with a weeping willow — the traditional sign of mourning — and a Grecian urn, but the Irish requested shamrocks on theirs.
”The Yankee carvers had no idea what a shamrock looked like,” MacKean explained. ” ‘What is a shamrock?’ I can imagine those Yankee stonecutters asking, and the Irish would say, ‘Well, it has three sides,’ ” said MacKean.
As a result, the shamrocks on the old gravestones don’t look alike, or much like shamrocks.
“They are all unique,” MacKean said.
He also doesn’t know why the Irish insisted on having them. ”It could be a sign of the Trinity, or a sign of identity, as though they are saying, ‘We are here to stay’,” he said.
As MacKean was working in the cemetery a few years ago, restoring graves that had been buried by grass, he met Reidy, searching for ones that were missing.
Reidy had visited Ireland, where she met a restaurant owner.
”When I told her I was from Lowell, she said that some of her ancestors, the Hussey family, had gone there,” Reidy said. ”So I said, ‘Let me find out where they are buried, and get a picture of their gravestone.’ “
When she returned to Lowell, Reidy went to St. Patrick’s and researched the cemetery records. The Hussey family was buried there, the records showed. But when Reidy couldn’t find the family plot, she discovered that many of the early Irish immigrants didn’t have marked graves.
”They lived in poverty. They didn’t have enough to put a stone over their heads, and after the life they struggled through, they deserve a marked grave,” she said.
”Here we are enjoying the fruits of their labor. It’s payback time,” she said.
With help from the Hibernians, Reidy and MacKean formed a group called Friends of St. Patrick Cemetery Association. One of the next things the group plans to do is restore Patrick Tiernan’s grave, to prevent it from crumbling even more.
”When you find a grave, it’s just a grave,” MacKean said. ”But when you get a name, it’s a story, and a person with a past.”



